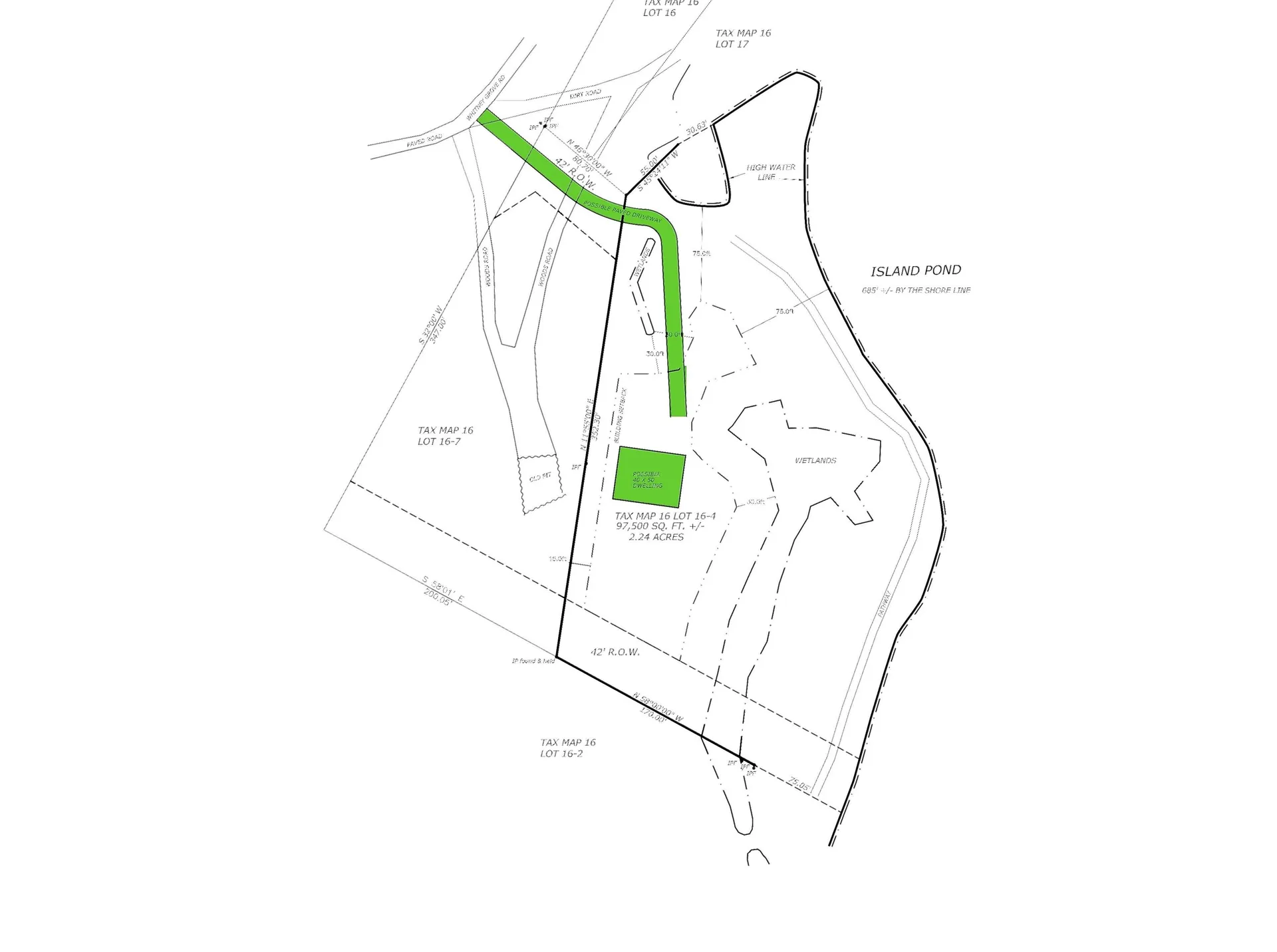
SECLUDED 2.24-ACRE WATERFRONT LOT ON BIG ISLAND POND WITH 700' OF FRONTAGE. Engineering work is underway for shoreland approval with a 4 bedroom septic. Escape to your own private sanctuary with this stunning 2.24-acre wooded lot, offering 685 feet of pristine shoreline on Big Island Pond in Derry, NH. This 532-acre gem, featuring 14 islands, is perfect for water lovers and outdoor enthusiasts alike. Whether you enjoy swimming, water skiing, power or sailboating, canoeing, kayaking, paddleboarding, tubing, or fishing stocked by the state, you'll find endless opportunities for recreation right at your doorstep. Big Island Pond offers a unique blend of fun connecting with lake freinds for adventure or just peaceful tranquility, with plenty of space to explore or find your own secluded nook. This is the perfect spot to build your dream waterfront home, with ample privacy provided by the wooded landscape. Conveniently located close to I-93, this lot provides easy access to both Boston and Manchester. Nearby, you'll find excellent golf at Atkinson Country Club or LaBelle Winery's 9 hole par 3 course plus mini golf, as well as a range of shopping, dining options, schools, and even an ice cream stand for a sweet treat on a warm day. This spacious parcel offers the ultimate blend of nature, privacy, and convenience, making it the ideal setting for your future home. Don't miss the chance to own this slice of waterfront paradise on one of Southern NH's most desirable lakes.

Listing Tools

Property Details of 19 Whitneys Grove Road

Property Details

Utilities and Appliances

Community

Map Location

Broker Reciprocity 

Copyright 2025 PrimeMLS, Inc. All rights reserved. This information is deemed reliable, but not guaranteed. The data relating to real estate displayed on this display comes in part from the IDX Program of PrimeMLS. The information being provided is for consumers’ personal, non-commercial use and may not be used for any purpose other than to identify prospective properties consumers may be interested in purchasing. Data last updated November 17, 2025 7:53 AM EST

 

Hi there! How can we help you?

Contact us using the form below or give us a call.

Send Us A Message:

I agree to receive marketing and customer service calls and text messages from Shamberger Realty LLC. To opt out, you can reply 'stop' at any time or click the unsubscribe link in the emails. Consent is not a condition of purchase. Msg/data rates may apply. Msg frequency varies. Privacy Policy.

Do not fill in this field:

This site is protected by reCAPTCHA and the Google Privacy Policy and Terms of Service apply.

Hi there! How can we help you?

Contact us using the form below or give us a call.

Send Us A Message:

Do not fill in this field:

This site is protected by reCAPTCHA and the Google Privacy Policy and Terms of Service apply.

Hi there! How can we help you?

Contact us using the form below or give us a call.

Send Us A Message:

Do not fill in this field:

This site is protected by reCAPTCHA and the Google Privacy Policy and Terms of Service apply.

Do not fill in this field:

This site is protected by reCAPTCHA and the Google Privacy Policy and Terms of Service apply.

Do not fill in this field:

This site is protected by reCAPTCHA and the Google Privacy Policy and Terms of Service apply.

Do not fill in this field:

This site is protected by reCAPTCHA and the Google Privacy Policy and Terms of Service apply.

$

Do not fill in this field:

This site is protected by reCAPTCHA and the Google Privacy Policy and Terms of Service apply.